Beschrijving
Ruime bovenwoning met dakterras en turn key.
Blijdorp, wie kent deze charmante Rotterdamse wijk nou niet? Bekend om haar groene lanen, prachtige architectuur uit de jaren '30 en centrale ligging ten opzichte van het centrum en uitvalswegen. Alles wat je nodig hebt ligt op loop- of fietsafstand. Van gezellige koffietentjes en supermarkten tot sportfaciliteiten en natuurlijk het Vroesenpark. Deze buurt ademt historie, sfeer en gemak. Een fijne plek om thuis te komen na een drukke dag.
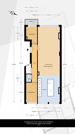
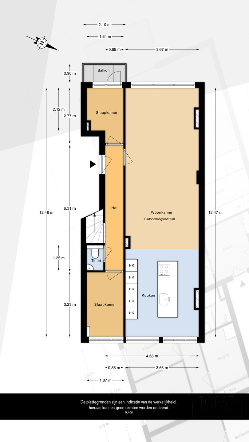
Het appartement ligt op een fraaie locatie aan de Schieweg. Je komt binnen via het keurige portiek en bereikt jouw nieuwe thuis op de tweede verdieping. Meteen bij binnenkomst valt op hoe ruim en licht het hier is. De woonkamer vormt het kloppend hart van het huis, met grote raampartijen waardoor het daglicht rijkelijk binnenvalt.
De moderne open keuken springt direct in het oog. Hier geen standaard inrichting, maar een luxe keuken met strak kookeiland. De plek voor gezellige etentjes of een snel ontbijt in de ochtend. De keuken beschikt uiteraard over hoogwaardige inbouwapparatuur; koken wordt hier gegarandeerd een feestje.
Deze fijne woning heeft 4 slaapkamers. Ideaal voor grotere gezinnen, mensen die ruimte zoeken voor een thuiswerkplek of gastenkamer, of gewoon voor wie houdt van lekker veel plek om al z’n spullen kwijt te kunnen. De kamers zijn slim zijn ingedeeld. Je kunt overal gemakkelijk je eigen draai aan geven. Een eigen werkhoek, een speelkamer voor de kinderen of een hobbykamer het kan hier allemaal.
Dit appartement is letterlijk turn key. Alles is netjes afgewerkt, van vloer tot plafond. Een fris kleurenpalet, moderne details en hoogwaardige materialen zorgen ervoor dat je hier zo je meubels neerzet en meteen kunt starten met genieten. Geen grootscheepse verbouwingen, schilderwerk of andere klusprojecten, gewoon direct comfortabel thuiskomen.
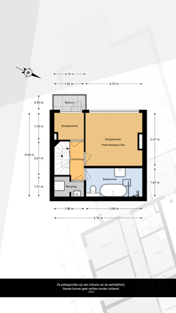
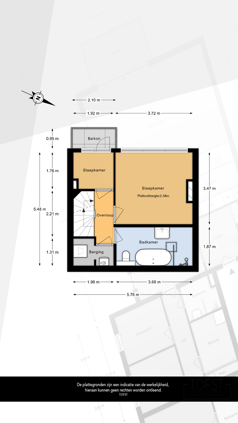
Het absolute kroonjuweel van dit appartement is het dakterras. Relaxen op een zomerse avond met vrienden of juist even wegdromen met een goed boek in je eigen buitenruimte midden in de stad. Hier geniet je optimaal van het uitzicht op de skyline en het unieke Rotterdamse stadsleven.
Bijzonderheden
- Eigen grond
- Turn key
- Geheel voorzien van dubbel glas
- Luxe keuken met kookeiland
- Heerlijk dakterras en 2x balkon
- Dichtbij openbaar vervoer, scholen, winkels, horeca en het Vroesenpark
- CV-ketel 2026
- Oplevering kan snel