Beschrijving
Dit lichte appartement aan de sfeervolle Avenue Concordia combineert het beste van twee werelden: wonen in een rustige, groene straat én leven midden in het geliefde Kralingen. Hier zit je precies goed als je een plek zoekt met charme, licht én alles binnen handbereik. De Lusthofstraat bruist op loopafstand, het Kralingse Bos ligt om de hoek en met de fiets of metro/tram vanaf de Voorschoterlaan sta je zó in het centrum.
Binnen voelt het appartement direct prettig aan. Het is gebouwd in 1954, goed onderhouden en de grote ramen zorgen de hele dag voor een fijne lichtinval. Dankzij dakisolatie, dubbel glas en een cv-combiketel woon je hier comfortabel met energielabel C.
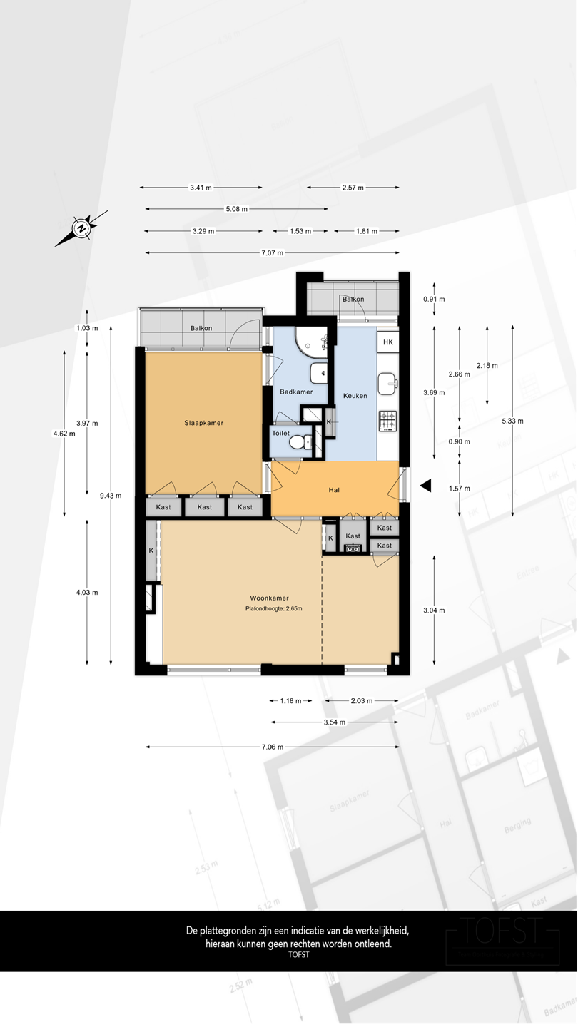
Tweede verdieping – licht, lucht en leefruimte
• Riante hal met vaste kastenwand en toegang tot alle kamers
• Woonkamer aan de voorzijde met uitzicht op de brede en groene Avenue
• Eetkamer of mogelijkheid voor een tweede slaapkamer aan de voorzijde
• Slaapkamer aan de achterzijde met toegang tot de badkamer
• Keuken met recht keukenblok, voorzien van gaskookplaat, afzuigkap, oven en vaatwasser.
• Badkamer met douche, wastafel en wasmachineaansluiting
• Apart toilet
Balkons – jouw plek onder de zon
• Achterbalkon aangrenzend aan de slaapkamer
• Het tweede balkon aan de keuken: ideaal voor je eerste koffie van de dag
Kralingen staat bekend om zijn mix van historie, rust en levendigheid. Voor boodschappen, koffietentjes en speciaalzaken wandel je zo de Lusthofstraat op. Voor ontspanning of een sportief rondje is het Kralingse Bos altijd dichtbij. Horecaliefhebbers kunnen terecht bij onder andere Vicini of Il Capo voor een smakelijke lunch.
Praktische pluspunten
• Gelegen op eigen grond
• Ca. 65 m² woonoppervlakte
• Twee balkons
• 2 bergingen (in de onderbouw en aparte fietsenberging aan de achterom)
• Dakisolatie en dubbel glas
• Beschermd stadsgezicht
• Rustige, groene straat
• Centrale ligging dichtbij winkels, horeca en OV
Een heerlijk appartement voor degenen die zoeken naar een lichte, comfortabele woning op één van de fijnste plekken van Kralingen.
De foto’s van ingerichte ruimtes zijn Artist Impressies.
Momenteel is de woonkamer/ eet/slaapkamer doorgebroken ten opzichte van de originele indeling. Voor het terugbrengen van een extra kamer moet een tussenwand worden aangebracht.
Wij treden op namens de verkoper; voor een aankoopadvies raden wij aan een eigen makelaar mee te nemen. Deze informatie is met zorg samengesteld en bedoeld tot onderhandeling, maar vormt geen bindend aanbod. Hoewel wij streven naar juistheid, kunnen wij geen aansprakelijkheid aanvaarden voor eventuele onjuistheden en kunnen er geen rechten aan deze informatie worden ontleend.