Beschrijving
Aan de rand van het centrum bevindt zich deze goed onderhouden 3-kamerwoning. De woning is gelegen in een goed onderhouden appartementencomplex en een stedelijke omgeving met alle voorzieningen op korte afstand.
Door de brede straat en ligging op de derde etage heb je en mooi vrij uitzicht over de omgeving.
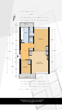
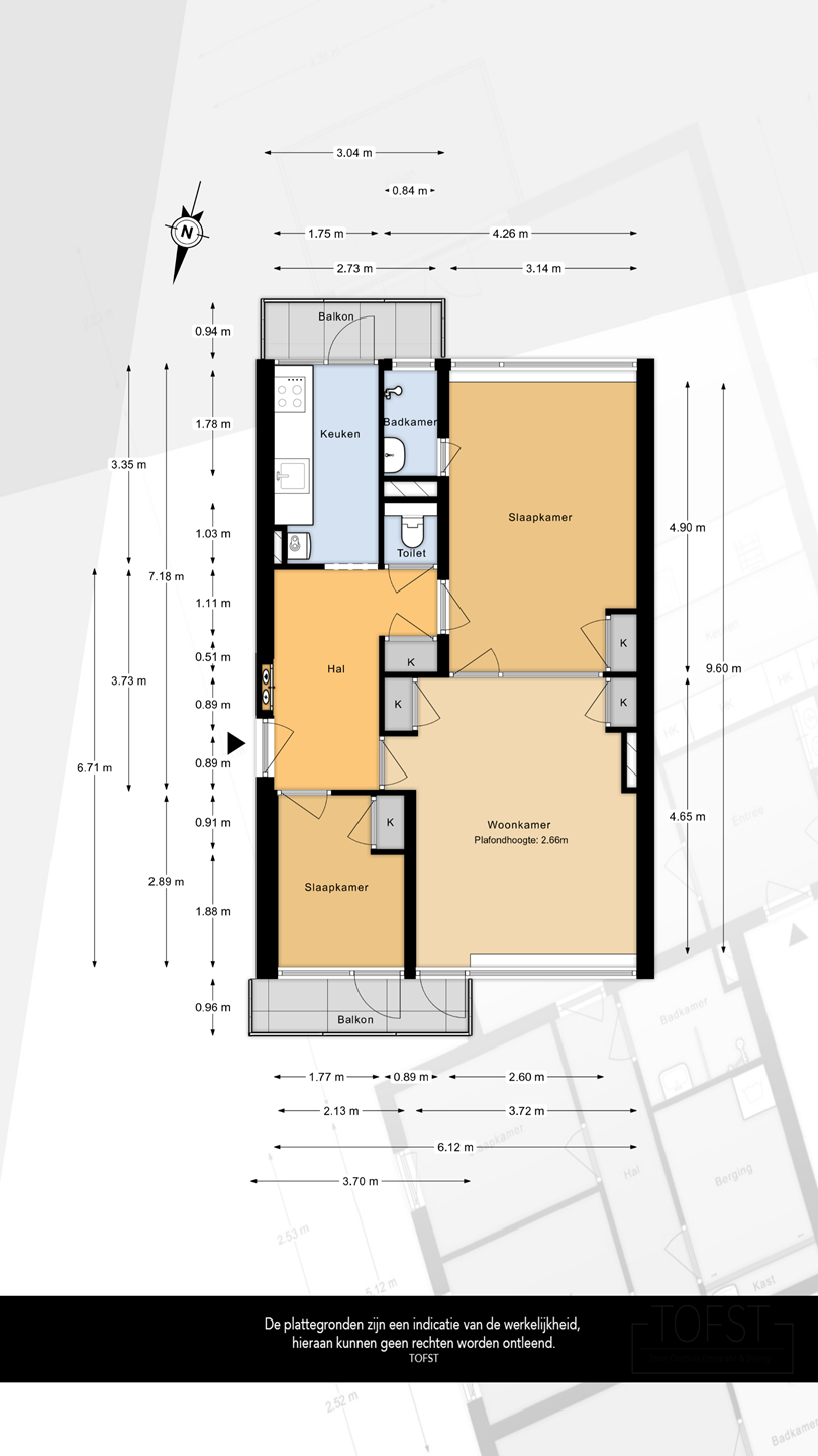
Indeling
Kenmerken:
- Ruime hal met toegang tot alle vertrekken
- Woonkamer met veel lichtinval en vrij uitzicht
- 2 slaapkamers
- 2 balkons met zowel ochtend als middagzon
- Eigen bergruimte in de onderbouw
- Recent volledig en hoogwaardig gerenoveerd
- Direct en zonder noemenswaardige kosten te betrekken
Het gebouw verkeert in een zeer goede staat van onderhoud. Recent is groot onderhoud uitgevoerd, waaronder de vernieuwing en isolatie van het dak, rondom HR++ beglazing, renovatie van de balkons en buitenschilderwerk. De woning zelf is daarnaast voorzien van gevelisolatie en heeft hierdoor een energielabel B.
Rondom het gebouw is goede parkeervoorziening aanwezig. De ligging biedt een praktische bereikbaarheid van openbaar vervoer, uitvalswegen en zowel buurtwinkels als het centrum van Rotterdam.
Kortom; een woning met een solide basis, goede buitenruimtes en een duurzaam onderhouden gebouw; geschikt voor wie comfortabel en centraal wil wonen.
Bijzonderheden
- Eigen grond
- Woonoppervlakte 60 m2
- Berging ca. 4 m2
- Verwarming en warm water via Atag combiketel- 2018
- Vve bijdrage € 192,85 per maand
- Oplevering in overleg
- Niet zelfbewoningsclausule, ouderdoms- en asbestclausule van toepassing
- Notariskeuze aan verkoper
Alle verstrekte informatie moet beschouwd worden als een uitnodiging tot het doen van een bod of om in onderhandeling te treden. Er kunnen geen rechten worden ontleend aan deze woninginformatie. De Meetinstructie is gebaseerd op de NEN2580. Deze is zorgvuldig uitgevoerd, doch moet gezien worden als indicatie van de oppervlaktes.