Beschrijving
Hoek appartement met prachtig uitzicht.
Zeg nou zelf: wie droomt er niet van een heerlijk licht en ruim appartement waar je vanuit je woonkamer uitkijkt over alles heen? Nieuwstraat 400, een moderne portiekflat midden in het centrum van Spijkenisse. Goed bereikbaar, voorzien van alle gemakken en voorzien van energielabel A .
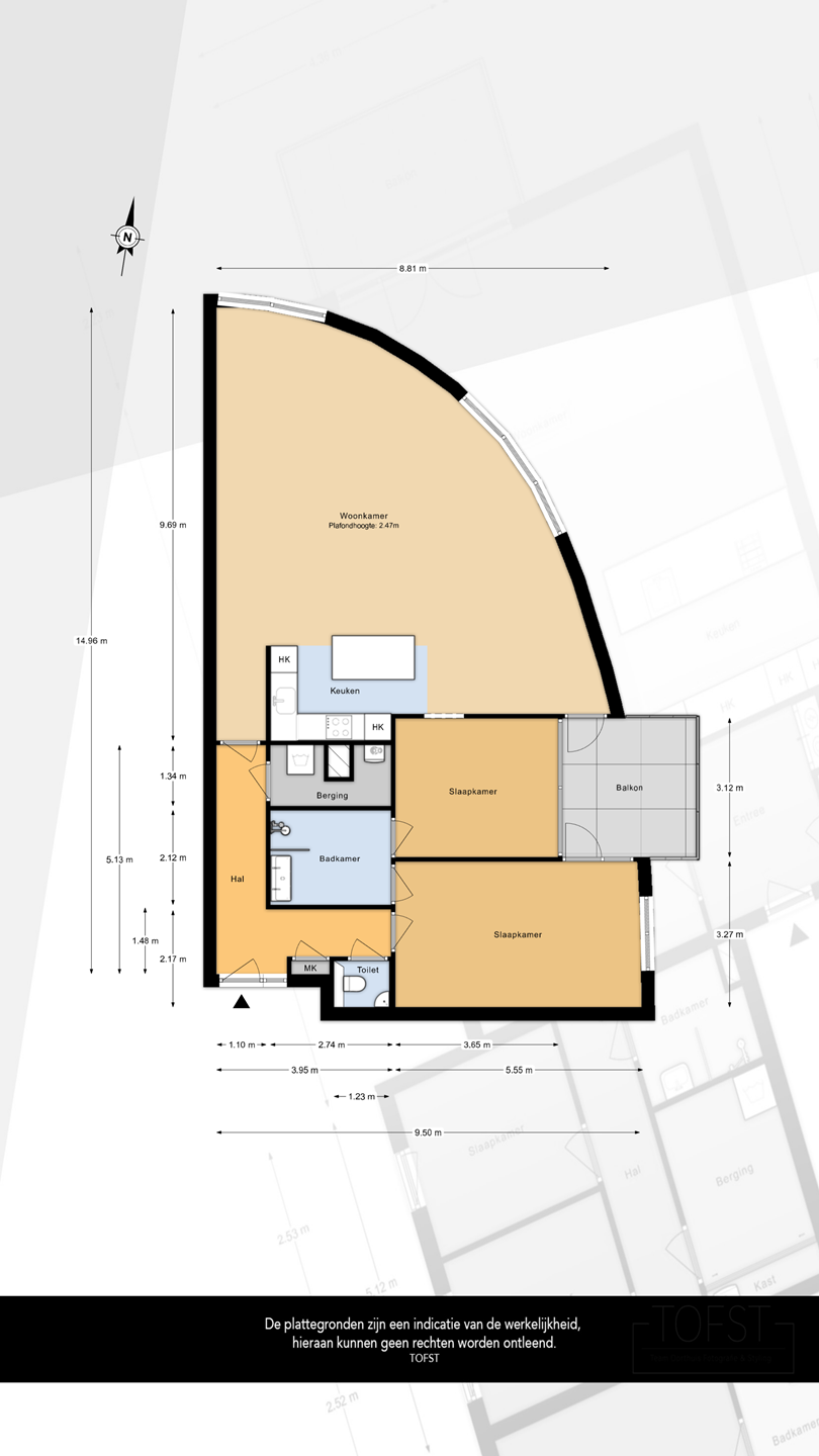
Bij binnenkomst word je meteen verrast door de enorme hoeveelheid daglicht die naar binnen stroomt. De grote ramen in de woonkamer stelen absoluut de show en bieden een panorama-uitzicht waar je elke dag weer blij van wordt. De woonkamer biedt volop ruimte voor een royale loungebank, een flinke eettafel en misschien zelfs een werkplek of speelhoek. Alles wat je nodig hebt om lekker te leven, vind je hier.
Aan privacy geen gebrek, want dit appartement beschikt over twee fijne slaapkamers die beide direct grenzen aan de badkamer. Ideaal als je ’s ochtends snel even wilt douchen voor je naar je werk moet, of als je ’s avonds zonder omwegen je bed in wilt duiken. De kamers lenen zich perfect als hoofdslaapkamer en kinder- of logeerkamer, maar zijn ook prima te gebruiken als kleedkamer, thuisgym of thuiskantoor.
Kortom: je kunt hier echt alle kanten op.
Naast ruimte en comfort, is ook de locatie om door een ringetje te halen. Je woont hier in een levendig stukje Spijkenisse, waar supermarkten, scholen, winkels, speciaalzaken, medisch centrum, ziekenhuis en openbaar vervoer op korte afstand liggen. Even een boodschap halen, een spontane wandeling maken of je favoriete koffietentje bezoeken? Je doet het hier allemaal… zonder gedoe.
Over praktische zaken hoef je je geen zorgen te maken. Je hebt namelijk beschikking over je eigen externe berging – ideaal voor je fiets(en), extra spullen of gereedschap. En er hoort er bij dit appartement een eigen parkeerplaats. Geen eindeloze rondjes meer rijden op zoek naar een plekje voor je auto; gewoon relaxed thuiskomen en direct parkeren.
Het appartement is gebouwd in 2002 en helemaal klaar voor nieuwe bewoners. Dankzij energielabel A woon je hier bovendien lekker duurzaam en houd je je energierekening prettig laag. Door de nette afwerking en de goed onderhouden staat kun je er direct in . Geen verbouwingen of schilderklussen nodig.
Of je nu samen een eerste huis zoekt, gezinsuitbreiding verwacht, of juist comfortabel en gelijkvloers wilt wonen – Nieuwstraat 400 verwelkomt iedereen. Hier kun je je eigen draai geven aan een fantastische plek waar licht, ruimte, uitzicht en comfort samenkomen.
Dit is je kans op een heerlijk appartement met unieke kwaliteiten op een fijne locatie in Spijkenisse. Interesse? Neem contact op voor een bezichtiging en ervaar zelf hoe het is om thuis te komen op Nieuwstraat 400.
Bijzonderheden
- Eigen grond
- Bijdrage VvE: €234,49- per maand. (Dit is voor het appartement, berging en de parkeerplaats)
- Hele woning is gemoderniseerd
- Hardhouten kozijnen
- Cv-ketel en airconditioning om te verwarmen (en koelen natuurlijk)
- Oplevering: In overleg