Beschrijving
Opnieuw in de verkoop. Financiering kopers kwam niet rond.
Klaar om te verhuizen zonder gedoe? Stop met zoeken! Aan de Zenostraat 73 in Rotterdam vindt je precies wat je zoekt: een compleet opgeknapte én duurzame eengezinswoning, met alles erop en eraan. Je hoeft eigenlijk alleen je verhuisdozen mee te nemen – de rest is al voor je geregeld.
Het fijne aan deze tussenwoning? Je woont in de knusse, groene wijk Lombardijen. Hier leeft het, kun je winkels en scholen om de hoek verwachten en spring je zo op het OV of de stadsfiets. Rijk aan voorzieningen én lekker rustig; dat is een combinatie die je niet vaak tegenkomt in Rotterdam!
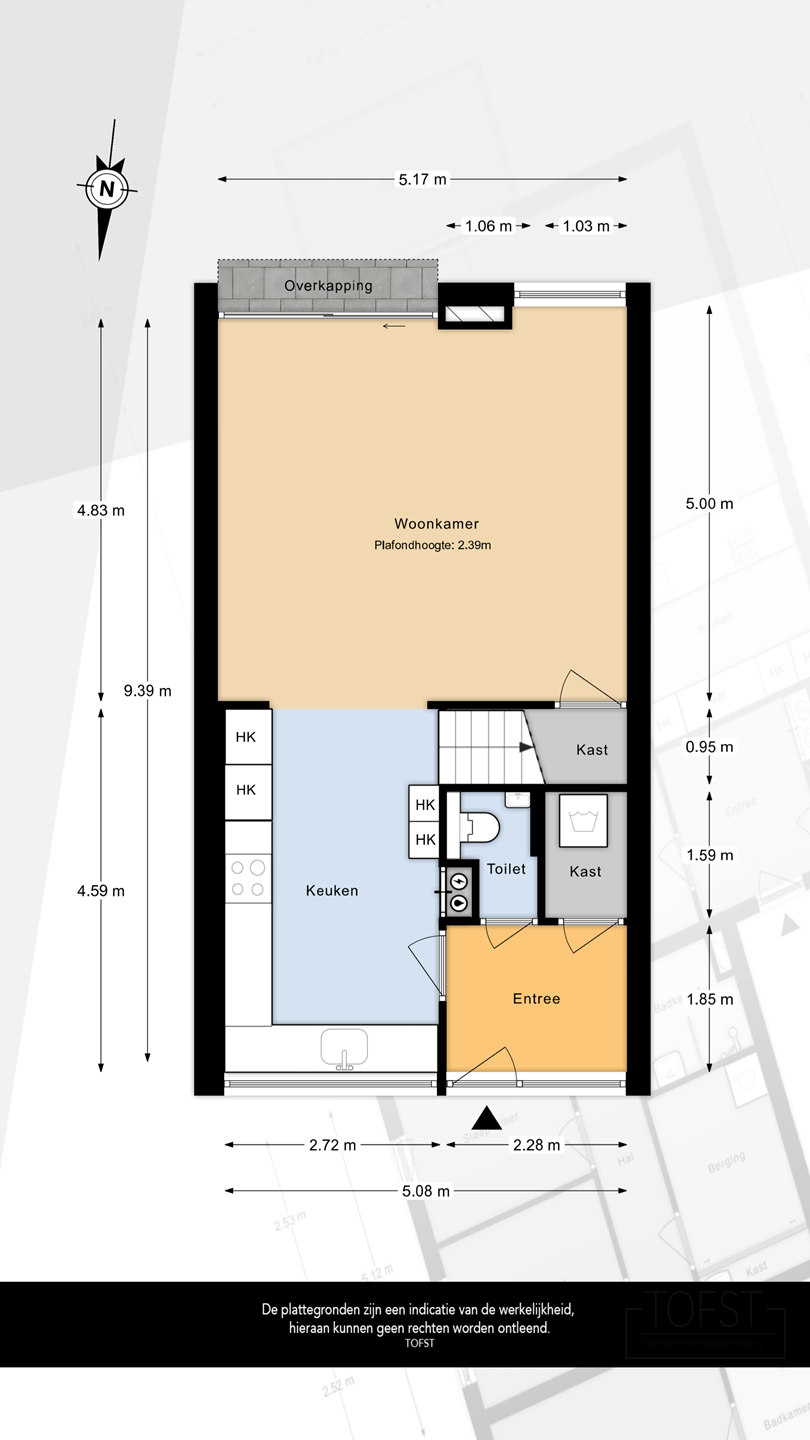
Deze woning uit 1961 heeft z’n karakter behouden, maar is van binnen helemaal klaar voor de toekomst. De perceeloppervlakte? Maar liefst 153 m2, waarvan een groot deel je tuin siert: 96 m2 aan zon, groen en privacy, dat is niet verkeerd, toch? De tuin is recent (2023) helemaal opnieuw aangelegd. Of je nou wilt tuinieren, barbecueën of gewoon relaxen met vrienden – het kan hier allemaal.
Extra fijn: achterin de tuin staan twee ruime schuren. Genoeg plek voor fietsen, gereedschap, of die hobby die veel ruimte opslokt – ideaal!
Compleet vernieuwd, energiezuinig en modern
In deze woning is de afgelopen jaren niet stilgezeten, alles is namelijk aangepakt. Je hoeft je dus niet druk te maken over grote klussen of onverwachte kosten. De gevel is gestraald en opnieuw gevoegd, wat de woning niet alleen een frisse uitstraling geeft, maar ook zorgt voor extra duurzaamheid.
Alle kozijnen zijn recent vervangen door kunststof exemplaren met HR++ glas (2021/2022). Lekker onderhoudsarm én super isolerend. De portiek is in 2022 bij de woning getrokken, waardoor het huis ruimer en praktischer aanvoelt.
De keuken? Gloednieuw (2022) koken wordt hier een feestje. De keuken is voorzien van allerlei inbouwapparatuur.
Daarnaast is gedacht aan comfort: de kruipruimte is geïsoleerd, het dak eveneens. Op alle plafonds van de eerste verdieping is nieuw stucwerk aangebracht voor die moderne strakke look. Wat dacht je van splits airco’s in de woon- en slaapkamer? Altijd lekkere temperaturen, zomer én winter!
De energievoorziening is helemaal top. Het huis heeft energielabel A+++, dus jouw energierekening blijft lekker laag! Met maar liefst 14 zonnepanelen op het dak, airco’s die ook verwarmen en rolluiken op de grote slaapkamer (heerlijk verduisterend en isolerend) heb je nauwelijks last van warmte of kou. Alles is gericht op maximaal comfort én duurzaamheid. Zelfs de riolering is in 2022 vervangen en de groepenkast vernieuwd – 14 groepen mét 3 aardlekschakelaars, voor wie het wil weten.
Instapklaar, sfeervol en klaar voor nieuwe herinneringen.
Je merkt het: Zenostraat 73 is echt zo’n huis waar je creatieve plannen meteen werkelijkheid kunnen worden. Scholen, winkels, sportclubs en uitvalswegen zijn vlakbij, maar thuis zit je rustig in je fijne tuin of moderne woonkamer. Zo’n complete woning, op deze plek en met zoveel comfort: dat komt je niet vaak tegen. Dus, ben je toe aan een frisse start, heb je zin om te wonen zonder kopzorgen en wil je niet eindeloos verbouwen? Kom snel kijken
Bijzonderheden
- Eigen grond
- Energielabel A+++
- Goed verzorgd
- Vanwege de leeftijd van de woning hanteren wij een ouderdomsclausule
- Oplevering: in overleg