Beschrijving
Heerlijk Gezinsleven in Modern Jasje: Burgemeester Wijnaendtslaan 29, Rotterdam
Wonen zonder zorgen doe je hier
Ben je op zoek naar een royale en instapklare eengezinswoning in het geliefde Rotterdam? Stop met zoeken, want aan de Burgemeester Wijnaendtslaan 29 wacht een modern familiehuis uit 2020 op nieuwe bewoners. Hier krijg je het beste van beide werelden: eigentijds comfort én een zee van ruimte, vlak bij het bruisende centrum van de stad.
Modern, ruim en duurzaam wonen
Dit huis is gebouwd in 2020 en dat merk je meteen. Alles voelt fris en nieuw, met het gemak van hedendaagse technieken. Dankzij energielabel A ben je verzekerd van lage energiekosten. Overal in de woning is vloerverwarming aangelegd, geen koude voeten meer in de ochtenden! Bovendien zorgen de twee dakkapellen voor verrassend veel extra ruimte én licht op de bovenste etages.
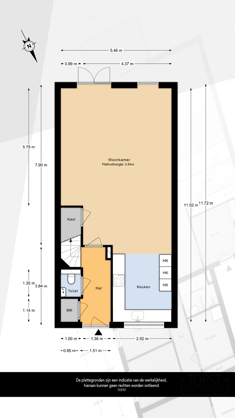
Sfeervol én praktisch: binnenkijken maar
Op het perceel van maar liefst 177 m² vind je een fijne tussenwoning, perfect voor gezinnen, stellen of jonge professionals die nét even wat meer willen. In de lichte woonkamer geniet je van een gezellige sfeer, met grote ramen die uitkijken op de riante achtertuin. De open keuken is een waar paradijs voor kookliefhebbers , hier ontstaan talloze gezellige avonden met vrienden of familie.
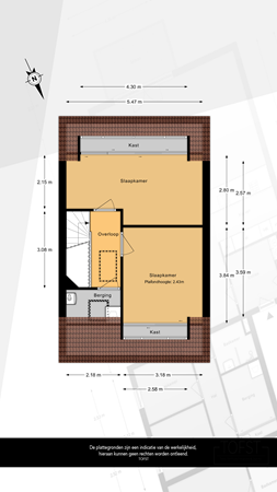
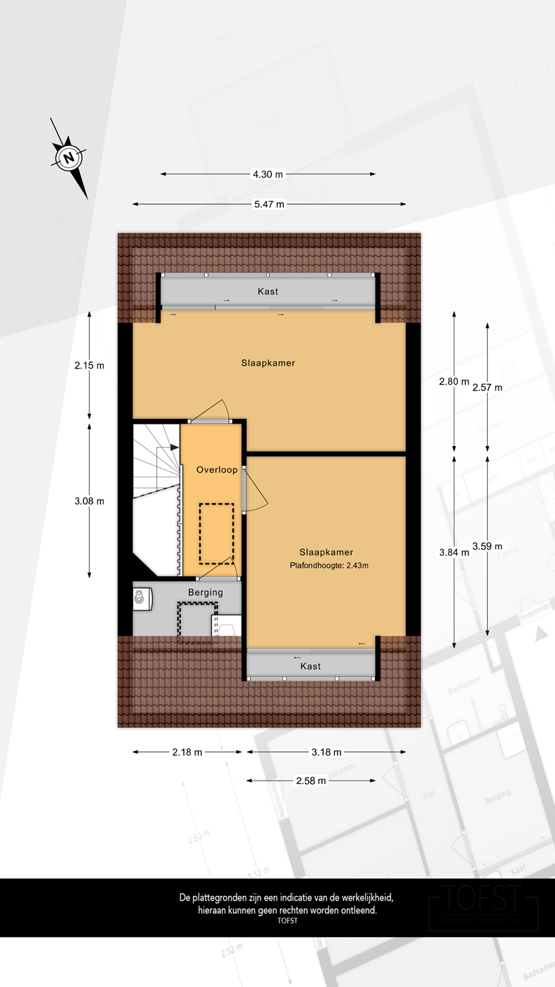
Slaapvertrekken om bij weg te dromen
De bovenverdiepingen laten zich slim indelen. Met dank aan de dakkapellen op zolder beschik je over extra ruime kamers: ideaal als rustige thuiswerkplek, lekkere speelkamer of een comfortabele logeerkamer. Ieder gezinslid vindt hier moeiteloos zijn eigen plekje. Geloof ons, daar wil je iedere ochtend wakker worden!
Grote tuin: zonnig genieten wordt standaard
Aan buitenruimte geen gebrek want je beschikt over een voortuin én een riante achtertuin van ca. 85 m². Of je nu groene vingers hebt, houdt van BBQ’en of graag kinderen vrij wilt laten spelen – hier kan het allemaal. In deze tuin heb je altijd een fijn plekje in de zon én privacy.
Een handige ligging, alles dichtbij
Nog zo’n groot pluspunt: de locatie. In deze wijk van Rotterdam woon je rustig, maar bereik je het centrum in slechts 10 minuten. Dat betekent heerlijk shoppen, koffietjes drinken en het rijke uitgaansleven binnen handbereik hebben. Tegelijkertijd profiteer je dus van de voordelen van een gezinswijk, mét voldoende scholen, winkels en groen voor de deur.
Bijzonderheden
- Eigen grond
- 2020 bouwjaar
- Vloerverwarming door het hele huis
- Zonnepanelen
- Vliering
- Oplevering kan spoedig
De Meetinstructie is gebaseerd op de NEN2580. De Meetinstructie is bedoeld om een meer eenduidige manier van meten toe te passen voor het geven van een indicatie van de gebruiksoppervlakte. De Meetinstructie sluit verschillen in meetuitkomsten niet volledig uit, door bijvoorbeeld interpretatieverschillen, afrondingen of beperkingen bij het uitvoeren van de meting