Beschrijving

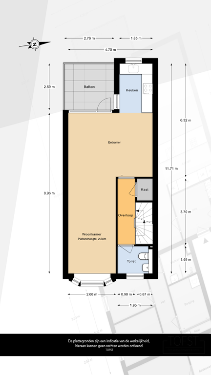
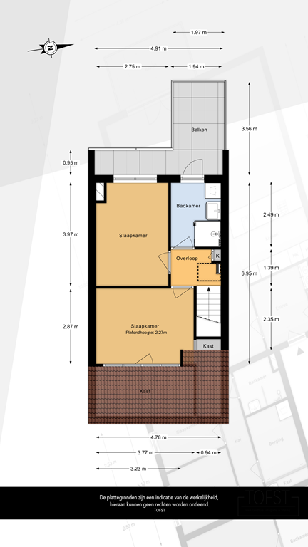
Gerenoveerde bovenwoning met 2 dakterrassen.

De woning ligt in een fijne, rustige straat en is met zijn bouwjaar uit 1933 een klassieker te noemen. Maar laat je niet misleiden: binnen vindt je namelijk allerlei moderne verbeteringen. De keuken is spiksplinternieuw, de laminaatvloer is ook nieuw. De badkamer is in 2021 en 2025  helemaal opgefrist. Je hebt dus echt geen grote klussen meer voor de boeg. Verhuizen, meubels neerzetten en lekker genieten!

Twee dakterrassen: altijd plek in de zon
Of je nu je eerste kop koffie van de dag in het zonnetje wilt drinken of juist ’s avonds met vrienden borrelt: met twee dakterrassen heb je hier alle ruimte. Zit je even niet op de een, dan verhuis je gewoon naar de andere. Zomeravonden, BBQ’s of lekker loungen? Hier kan het allemaal!

Het appartement is slim ingedeeld en voelt allesbehalve benauwd. Door de ligging als bovenwoning heb je sowieso geen last van gestommel boven je hoofd. De woonkamer is lekker licht, de slaapkamers bieden voldoende privacy. Of je nu alleen woont, samen, een gezin hebt of plannen hebt om te delen met een huisgenoot, het past allemaal.

Centraal in Schiedam, dichtbij alles wat je nodig hebt
De locatie is goud waard: midden in Schiedam, met het stadshart om de hoek. Even naar de markt? Geen probleem. Zin in een wandelingetje door het park? Je bent er zo. Winkels, scholen, OV en uitvalswegen: allemaal binnen handbereik. Hier woon je rustig, maar wel lekker centraal.

Direct te betrekken, geen gedoe 
Lekker stressvrij dus, want verbouwen hoeft niet. Keuken vernieuwd – check. Nieuwe vloer – ook geregeld. Badkamer tiptop – daar kun je op bouwen! Dit huis staat gewoon te popelen op nieuwe bewoners die direct willen starten met genieten.

Voor wie is dit appartement geschikt?  
Tsja, eigenlijk voor iedereen! Of je nou starter, doorstromer, alleenstaand, stel, gezin of gezellig met vrienden wilt samenwonen: er is plek voor jullie allemaal. Dankzij de royale indeling en de twee ruime buitenruimtes, kun je gemakkelijk met z’n allen je eigen plekje vinden.

Bijzonderheden

-	Eigen grond
-   Volledig gerenoveerd
-	Bijdrage VVE €50,- per maand
-	Nieuwe keuken
-   Nieuwe vloer
-	Kunststof kozijnen
-	Vanwege het bouwjaar van de woning zal er in de koopakte een ouderdoms- en asbestclausule worden opgenomen
-	Niet bewonersclausule van toepassing
-   Vliering op stahoogte
-	Oplevering kan snel

Kenmerken