Beschrijving

Unieke kans: creëer jouw droomwoning in Hillegersberg-Zuid

Ben jij op zoek naar een woning die je volledig naar eigen smaak kunt ontwerpen en afwerken? Dan is deze karakteristieke jaren ’30 bovenwoning aan de Violenstraat in Hillegersberg-Zuid precies wat je zoekt.

Deze woning wordt nagenoeg casco opgeleverd en biedt daarmee een blanco canvas voor jouw ideale indeling, stijl en afwerking. Met circa 75 m² woonoppervlakte, verdeeld over twee woonlagen én de mogelijkheid tot uitbreiding van de woonoppervlakte naar ca. 90 m2 door de zolderverdieping beter bereikbaar te maken, is dit een project met enorme potentie.

Wat maakt deze woning bijzonder?
-	Volledig naar eigen wens te moderniseren 
-	Authentiek jaren ’30 pand (1931) met o.a. glas-in-looddetails 
-	Lichte doorzonwoonkamer 
-	Balkon op het zuiden
-	Grote meerwaarde: mogelijkheid tot realiseren van een volwaardige zolderverdieping door het plaatsen van een vaste trap 

Ligging
Gelegen in het populaire Hillegersberg-Zuid, een rustige en groene woonomgeving in Rotterdam. Alle dagelijkse voorzieningen zoals winkels, horeca, scholen en openbaar vervoer liggen op loopafstand. Daarnaast ben je binnen enkele minuten in het centrum van Rotterdam. Voor recreatie ga je lekker naar de Bergse Plassen of het Lage Bergse Bos.

Indeling (huidig)
Eigen entree met trapopgang. 

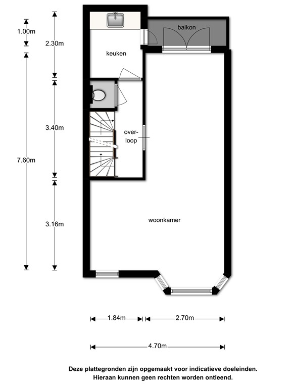
1e verdieping
Toiletruimte
Keuken met toegang tot het balkon
Ruime en lichte woonkamer met openslaande deuren naar het balkon

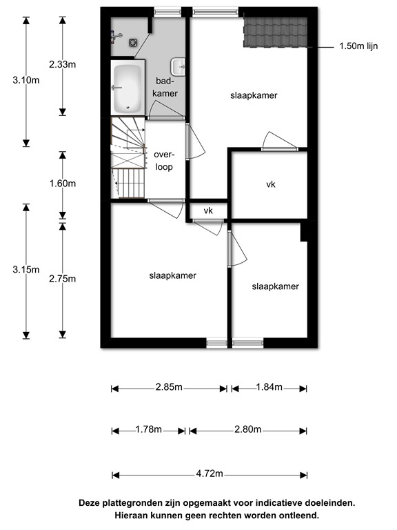
2e verdieping
Overloop, twee slaapkamers en een casco badkamer. 

Zolderverdieping
De zolder is bereikbaar via een vaste, maar steile trap.  Met het aanbrengen van een goed beloopbare trap en toevoeging van een dakraam kun je een mooie slaapverdieping creëren.

Kortom; een woning met karakter, ruimte en vooral veel mogelijkheden. 
Perfect voor wie zijn eigen droomhuis wil realiseren op een toplocatie.

VvE en bijzonderheden
De VvE is net van beheerder gewisseld, welke pro actief de taken gaat oppakken. De bijdrage is momenteel € 66,00 per maand, maar deze zal waarschijnlijk herzien gaan worden.

De huidige eigenaar heeft de woning niet bewoond; vanwege de casco staat zal er een “as is where is”-clausule van toepassing zijn.


Bijzonderheden:
Eigen grond
Woonoppervlakte ca. 75 m2
Zolderverdieping (overige inpandige ruimte) ca. 15 m2
Balkon ca. 3 m2
Projectnotaris Rox Legal te Rotterdam
Funderingsrapport uit 2016

Disclaimer
Deze informatie is met zorg samengesteld, doch aan de inhoud hiervan kunnen geen rechten worden ontleend. Deze aanbieding dient uitsluitend als uitnodiging tot het doen van een bod. Een overeenkomst komt tot stand nadat de koopakte door beide partijen is ondertekend.

Kenmerken