Beschrijving
Deze ruime dubbele bovenwoning uit 1939 met bergzolder is recent volledig van A tot Z en onder architectuur gerenoveerd (inclusief leidingen en elektra) en verkeert in nieuwbouwstaat. Dankzij zorgvuldige isolatie en moderne installaties woon je hier zuinig en comfortabel met energielabel A. De ligging is centraal: winkels en openbaar vervoer (tram/metro/bus, Zuidplein) op loopafstand en Zuiderpark en Ahoy vlakbij.
Indeling
• Portiek met opgang naar de eerste verdieping. Op de eerste verdieping bevindt zich de eigen voordeur met trap naar de woonverdiepingen.
2e verdieping
• Overloop met toegang tot toilet met fonteintje en meterkast.
• Ruime eetkamer met grote raampartijen over de volle breedte, openslaande deuren naar zonnig balkon (zuidwest). Uitzicht op de achtertuinen.
• Open Bruynzeel keuken (2025) in L-opstelling met keramisch blad; voorzien van Atag inbouwapparatuur, zoals inductiekookplaat, afzuigschouw, combi-oven, koelkast met vriesvak en vaatwasser.
• Woonkamer aan voorzijde, bereikbaar via karakteristieke inbouwkast met glas-in-lood ensuite deuren; veel lichtinval.
3e verdieping
• Ruime overloop met wasruimte en de badkamer.
• Badkamer: ligbad, inloopdouche, wastafelmeubel, tweede toilet en vraaggestuurd afzuigsysteem (Climarad).
• Twee grote slaapkamers: één aan de voorzijde met dakkapel en diverse inbouwkasten, waarvan één kast de cv-combiketel (2024) bevat. Tweede slaapkamer aan de achterzijde (voorheen twee kamers) met grote dakkapel; veel ruimte en licht.
Zolderruimte
• Grote bergzolder over de volledige lengte en breedte, bereikbaar via vlizotrap; veel opslagruimte.
Onderhoud en staat
• De woning is recent volledig en onder architectuur gerenoveerd. Alle leidingen en elektra zijn vernieuwd, verbeterde indeling, nieuwe keuken en sanitair, volledige isolatie van gevels en dak, HR ++ glas in kunststof- (achterzijde) of houten (voorzijde) kozijnen, stuc-, schilder en sauswerk .
• Exterieur: de gevels en balkons zijn volledig gerenoveerd en houten kozijnen recent geschilderd.
• Verwachte start VvE is gezond, gezien het recente groot onderhoud.
Bijzonderheden
- Bouwjaar 1939
- Woonoppervlakte ca. 98 m²
- Energielabel A
- Warm water/ verwarming Combiketel Atag 2024
- Bijdrage actieve VvE bedraagt (nog vast te stellen) per maand
- Koopovereenkomst wordt voorzien van niet zelfbewoningsclausule
- Gelegen op eigen grond
- Oplevering in overleg
- Projectnotaris te Rotterdam
- De woning wordt verkocht onder voorbehoud van definitieve splitsing
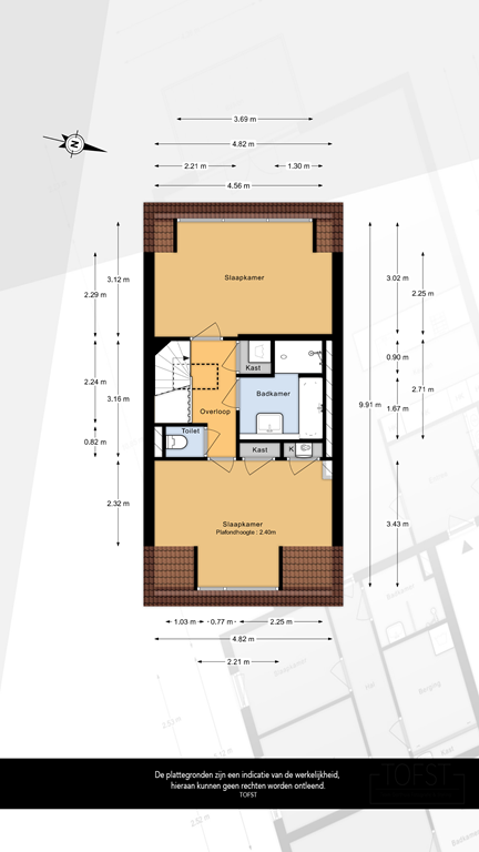
Plattegronden
179598184_texelsestraat_5_2e_verdieping_2e_verdieping_20251121_6da16c.png
179598184_texelsestraat_5_3e_verdieping_3e_verdieping_20251121_186eb8.png
179598184_texelsestraat_5_vliering_vliering_20251121_c5b457.png
179598184_texelsestraat_5_1e_verdieping_1e_verdieping_20251121_4a8d19.png