Beschrijving

Sfeervolle benedenwoning met karakter in hartje Kralingen.

Welkom aan de Honingerdijk 69 B- een charmante benedenwoning vol karakter en authentieke details, gelegen in één van de mooiste en meest gewilde wijken van Rotterdam; Kralingen.

Deze woning uit 1900 ademt sfeer en historie; met haar hoge plafonds, originele ornamenten en een mooie schouw die direct de aandacht trekken.
Vanaf de entree met prachtige klassieke deur, tochtportaal met originele tegels en lange gang met historisch fonteintje bereik je alle ruimtes.

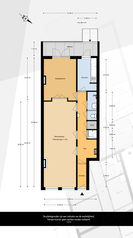
De dichte keuken is praktisch ingedeeld en biedt voldoende ruimte voor een gezellige bartafel en veel opbergruimte. Vanuit de keuken is er toegang tot de veranda en de zonnige achtertuin op het zuidwesten; een heerlijke plek om te ontspannen, te tuinieren of te genieten van lange zomeravonden. 

De keuken en badkamer met toilet zijn functioneel, maar eenvoudig en bieden een mooie gelegenheid om de ruimtes op termijn naar eigen smaak te vernieuwen.

De ruime woonkamer (voorheen kamer-en-suite) biedt volop ruimte en licht, ideaal om zowel een gezellig zitgedeelte als een eethoek te creëren. Door de hoge ramen ervaar je een zee van licht en ruimte en heb je een fijn contact met de straat.  

De grote slaapkamer aan de achterzijde zorgt voor rust en privacy. Een mooie eye catcher zijn de plafondhoge openslaande deuren tussen de woonkamer en de slaapkamer. Door eveneens openslaande deuren aan de achterzijde van de slaapkamer, bereik je de veranda die een gevoel van Southern Comfort uitstraalt door de hoge houten pilaren en sfeervolle houten vloerdelen.

Een fijne extra is de (wijn)kelder van ca. 7 m2; perfect voor het bewaren van voorraad of wijn. Hier bevindt zicht tevens de recent vernieuwde cv-combiketel, welke zorgt voor extra comfort en energiezuinigheid.

De ligging van de woning is perfect; in het geliefde Kralingen, bekend om haar statige panden, levendige winkelstraten en sfeervolle horecagelegenheden. Op korte afstand vind je de Kralingse Plas en het Kralingse Bos; ideaal voor een wandeling of ontspannende activiteit.
Bovendien zijn de uitvalswegen en het openbaar vervoer uitstekend bereikbaar, waardoor je binnen enkele minuten in het centrum of buiten de stad bent.

Kortom: een woning met karakter, potentie en een fantastische locatie. 

Algemeen: 
- Bouwjaar 1900
- Woonoppervlakte ca. 80 m² 
- Energielabel C
- Warm water/ verwarming Combiketel uit 2024
- VvE in oprichting; bijdrage n.o.t.k. 
- Koopovereenkomst wordt voorzien van ouderdomsclausule en niet zelfbewoningsclausule
- Gelegen op eigen grond 
- Oplevering in overleg 
- Projectnotaris te Rotterdam

Foto’s van ingerichte ruimtes zijn Artist impressions.
Deze informatie is door ons met de nodige zorgvuldigheid samengesteld. Echter er wordt geen aansprakelijkheid aanvaard voor enige onvolledigheid, onjuistheid of anderszins, dan wel de gevolgen daarvan. Alle opgegeven maten oppervlakten zijn indicatief. Alle verstrekte informatie moet beschouwd worden als een uitnodiging tot het doen van een bod of om in onderhandeling te treden. Er kunnen geen rechten worden ontleend aan deze woninginformatie.

Kenmerken